Обяви 0 За нас Контакти
Продава СКЛАД
град Пловдив, Индустриална зона - Марица
299 000 €
584 793.17 лв.

(1 010 €, 1 975.39 лв./m2)
Цената е без ДДС
История на цената
Коригирана в 8:13 на 15 април, 2026 год.
Обявата е посетена 545 пъти.
Площ:
296 m2
Строителство:
Сглобяема конструкция, Ще бъде въведен в експлоатация 2027 г.

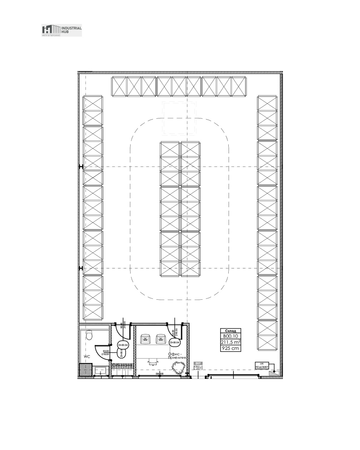
Описание на имота:


Складово помещение с отлична локация

ID: Base 10

Продава се самостоятелно складово помещение в Industrial Hub Plovdiv Ring West I с отлична локация и изградена инфраструктура. Подходящо за складова, логистична или сервизна дейност.

Площи:
-Застроена площ (ЗП): 296,5 m²
-Разгъната застроена площ (РЗП): 217 m²
-Склад: 191,1 m²
-Битови помещения: 20,4 m²

Паркоместа и зони за индивиуално ползване:
-Зона за паркиране и зареждане: 79,5 m²
-Паркоместа: 3 бр.

Конструкция и материали:
-Монтажна стоманобетонова конструкция
-Окачена стъклена фасада
-Сандвич панели с минерална вата
-Покрив с TPO мембрана (312 kN/m²)
-Шлайфана бетонова подова настилка
-Алуминиева дограма
-Огнеустойчиви врати до 90 мин.

Технически параметри:
-Височина склад 9m до ЛТ ламарина
-Размери на товарем вход: Ш 3м. х В 3,5м.
-Осветеност: 566 lux
-Инсталирана мощност: 50 kW
-Максимална мощност: 30 kW
-Трифазно електрическо табло

Имотът е самостоятелен с индивидуален кадастрален идентификатор и отделни партиди за ток и вода. Разполага с удобен достъп за товарни автомобили и възможност за комбиниране на складова и офисна част на едно място.

Инвеститорът осигурява професионална поддръжка на обекта:
-FTP интернет инфраструктура
-24/7 видеонаблюдение
-Зарядни станции за електромобили
-Пълна ВиК система
-Дренаж и локална пречиствателна станция
-Дизелов агрегат

Първият индустриален парк в България за малкия и среден бизнес - Industrial Hub Plovdiv Ring West I.

www.industrialhub.bg
Особености
Сглобяема конструкция
С паркинг
Интернет връзка
Видео наблюдение
Контрол на достъпа
Охрана
За контакт:
0882642715
Строителна фирма:
ИНДЪСТРИЪЛ ХЪБ
0882 642 715
ИНДЪСТРИЪЛ ХЪБ logo
В imot.bg от 2026 г.
industria_hub.imot.bg
Адрес:
област Пловдив, гр. Пловдив, 203639247
ИЗПРАТИ ЗАПИТВАНЕ
ИЗПРАТИ ЗАПИТВАНЕТО

Продава СКЛАД
град Пловдив, Индустриална зона - Марица
Обява: 1n177037133303474

299 000 €
584 793.17 лв.
История на цената
(1 010 €, 1 975.39 лв./m2)

Цената е без ДДС
ЗАПАЗИ ОБЯВАТА

Местоположение: град Пловдив, Индустриална зона - Марица

Допълнителни данни за имотите в района и сравнение с други райони

Покажи

Период

и 4 месеца

* Средните цени са определени чрез медианна стойност